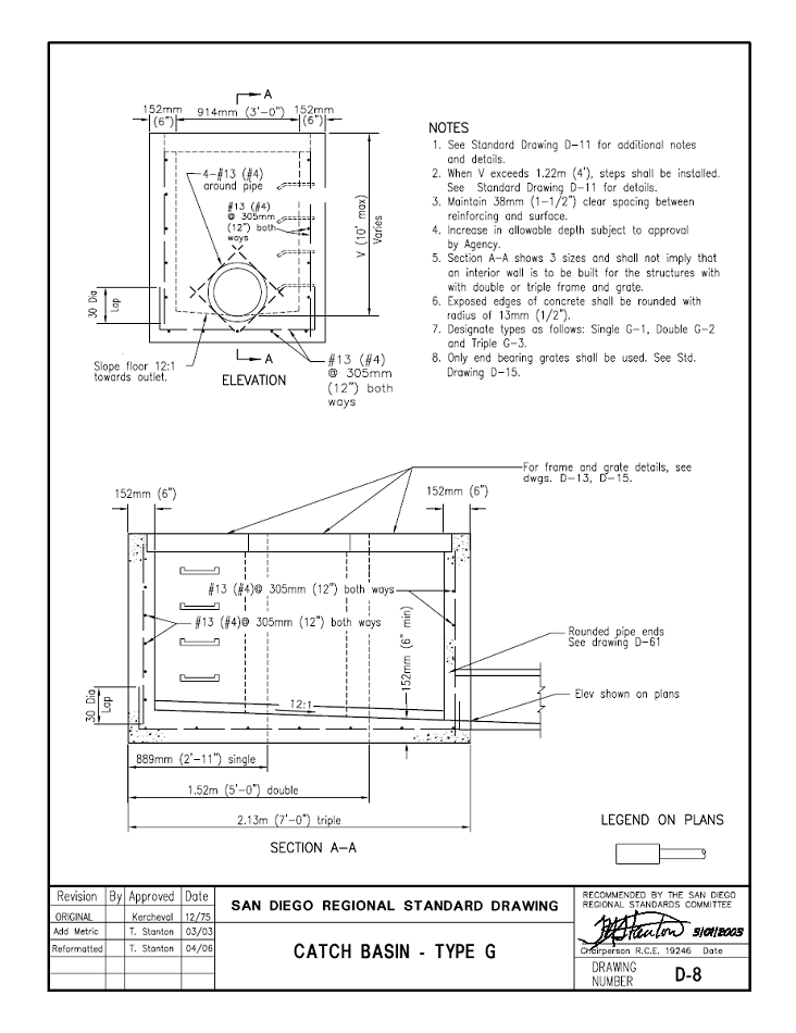
Type G Catch Basin

The Type G Catch Basin is normally used in parking lots. This Catch Basin has a core dimension of 2' x 3' that will extend full height from the pipe to the curb. The 2'x3' heavy traffic frame and grate are centered on the top of the structure. Typically it will have one pipe coming out of it, but may have more pipes if necessary.