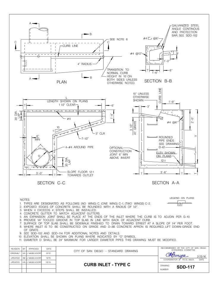
Type C Curb Inlet

The Type C Curb Inlet is split in half by the curb line. The 2'x3' heavy traffic frame and grate sit in the street in front of the curb. This structure has a 3' x 3'6" core that will extend full height from the pipe to the curb. This Curb Inlet collects water from the gutter and drains into pipe below. Typically it will have one pipe coming out of it, but may have more pipes if necessary. Typically this structure is used if the pipe is parallel with the curb line, and in the street or directly under the curb line. Another use would be if there were exisiting utilities behind the curb that required a narrower structure. The Type C Curb Inlet can also have one, or two wings. The purpose of the wings is to create a larger opening in the curb for a higher volume of water. Typically you will see these on, or at the bottom of, hills. They would be known as a Type C1, or Type C2 for one or two wings respectively.